289
0
پمپ های لجن کش؛ کاربردها، ویژگی ها و انواع لجنکش
پمپ لجن کش در گروه موتور پمپ های مستغرق سانتریفیوژ قرار دارند. و بسته به نوع الکتروموتور در دو نوع لجن کش سه فاز و لجن کش تک فاز ارائه می شوند. و بسته به نیاز مصرف کننده با تنوع جنس بدنه و پروانه تولید و عرضه می شوند.
انواع پمپ لجن کش:
- لجن کش استیل
- لجن کش چدن
- لجن کش برنزی
در بین عملکرد انواعپمپ آب، عمده ترین کاربریپمپ لجن کش، در چاه آب و تخلیه استخر ها و برداشت آب از حوضچه ها، نهرها و رودخانه ها است. از دیگر کاربردهای لجن کش ها می توان به انتقال و پمپاژ فاضلاب صنعتی و فاضلاب خانگی و دیگر سیالات دارای ذرات معلق و ذرات جامد اشاره کرد.
این پمپ ها می توانند به سنسورهای حرارتی، روغن، بیرینگ، آب و رطوبت مجهز شوند که این موضوع بستگی به توان نامی و شرایط استفاده و نوع عملکرد پمپ دارد.
پمپ های لجن کش به دسته کلی تقسیم می شوند:
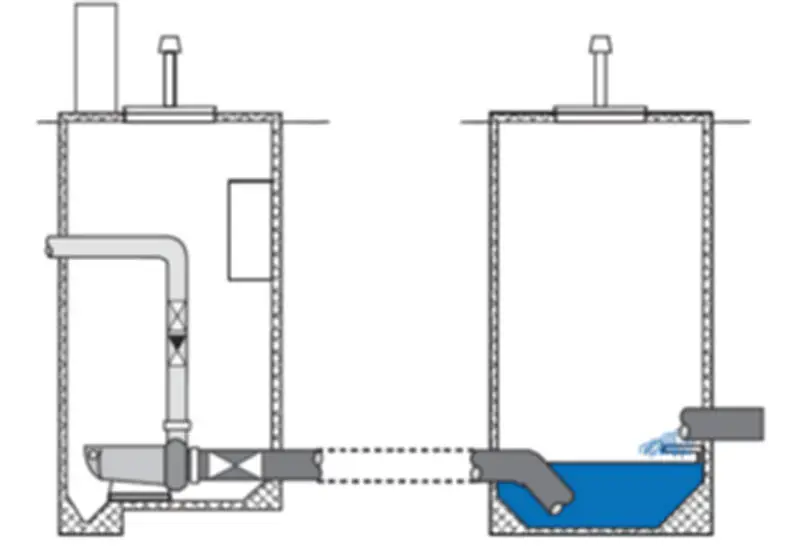
لجن کش شناور (لجن کش مستغرق):
این نوع لجن کش ها دارای درجه حفاظتی IP68 هستند. به گونه ای که می توانند در سیال به صورت کامل غوطه ور شوند. عبور سیال از اطراف الکتروموتور که کاملا آب بندی شده است، باعث خنک شدن موتور و در نتیجه افزایش طول عمر آن می شود و همچنین در اثر کاهش جریان موتور، راندمان آن نیز افزایش می یابد.
باید توجه داشت که در این نوع الکتروپمپ ها، حتما تمام بدنه و الکتروموتور در آب غوطه ور باشد؛ زیرا در صورتی که آب اطراف بدنه موتور را در بر نگرفته باشد، خنک سازی موتور به خوبی انجام نمی پذیرد و در نتیجه موجب آسیب به عایق موتور و سوختن موتور می شود.

لجن کش عمودی (ورتیکال):
در این نوع لجن کش ها،الکتروموتوردر ارتفاع مورد نظر و در خارج سیال قرار دارد و پمپ در داخل سیال غوطه ور است. این دو از طریق کوپلینگ به هم وصل هستند. در نتیجه به راحتی می توان الکتروموتور را در صورت نیاز از آن جدا کرد.این نوع پمپ را اصطلاحا پمپ خشک نیز می نامند.
مشخصات فنی پمپ لجن کش:
- جنس بنده پمپ لجن کش:استنلس استیل، چدن و برنز
- جنس پروانه لجن کش:استیل، چدن و برنج
- نوع تغذیه الکترو موتور:تکفاز یا سه فاز
- مشخصات عملکردی:آبدهی (دبی)، ارتفاع (هد)
- سایز لوله خروجی:این سایز بر حسب اینچ و ممکن است به شکل فلنج یا اتصالات رزوه ای باشد.
- مشخصات اختصاصی:خرد کن دار، فلوتر دار (قطع کن شناور)

پمپ لجن کش خرد کن دار:
این نوع لجنکش برای انتقال فاضلاب حاوی ذرات معلق و اجسام جامد و الیاف باشد بکار می رود. مپ لجن کش خردکن دار دارای مکانیسم و شکل خاص پروانه و هوزینگ است که این امکان را به پمپ می دهد تا اجسام با ابعاد بزرگ را خرد و همراه با سیال پمپ کند.
عموما در این نوع پمپ ها از پروانه باز یا نیمه باز استفاده می شود. که باعث می شود اجسام جامد در داخل پمپ تجمع پیدا نکند. در صورت استفاده از پروانه بسته، امکان گیر کردن اجسام جامد در داخل پروانه وجود دارد و کار پمپ را مختل می کند.
بیشتر بدانید:
آشنایی با انواع پمپ آب و نحوه کنترل آن
کاربرد پمپ های لجن کش:
انتقال و جابه جایی مایعات دارای ذرات جامد مانند الیاف بلند
انتقال و جابه جایی سیالات دارای ذرات سایشی
انتقال و جابه جایی فاضلاب صنعتی حاوی مواد شیمیای خورنده و اسید یا قلیایی
انتقال و جابه جایی آب آلوده
انتقال و جابه جایی آب گل آلود
انتقال و جابه جایی سیالات حاوی آب و گاز
انتقال و جابه جایی لجن پساب صنعتی مخلوط با آب
انتقال و پمپاژ در خمیر کاغذ و صنعت فولاد سازی
پمپاژ سیالات خورنده
انواع الکتروپمپ لجن کش از لحاظ نحوه خنک کاری:
- الکتروپمپ لجن کش آب خنک
- الکتروپمپ لجن کش روغن خنک
انواع لجن کش از لحاظ قرار گیری پروانه در هوزینگ یا پوسته و از لحاظ شکل:
لجن کش تک کاناله
لجن کش دو کاناله
لجن کش پروانه نیمه باز
لجن کش پروانه باز
لجن کش پروانهVortex
برای مشاهده مشخصات فنی، قیمت و خرید پمپ لجنکش و سایر انواع پمپ آب می توانید به صفحات محصولات فروشگاه ویدفکتور مراجعه فرمایید:


نظر خود رابنویسید